Būvniecības dokumentācija tiek sagatavota šādām valstīm:

House Plan: 1188 sq ft, 1 Story, 4 Beds, 2 Baths, Open Floor Plan, 1-Car Garage

Projekts
10622R
Pabeigts
Bez paraksta un bez zīmoga
DK Nav
Galvenie parametri
110
Total Heated m²
2 + 0
Vannasistabas + Tualetes
4 + 0
Guļamistabas + Darba istaba
1
Auto
Projekt architektoniczno-budowlany zawiera

opis techniczny

rzuty wszystkich kondygnacji

rzut więźby dachowej

rzut dachu

przekroje

elewacje

Projekt techniczny zawiera

projekt konstrukcji

projekt instalacji sanitarnych

projekt instalacji elektrycznej

projekt instalacji wentylacji mechanicznej

Do projektu dodajemy bezpłatnie

teczka do przechowywania dokumentacji projektowej

dziennik budowy

tablicę informacyjną na budowę - po otrzymaniu projektu domu i wypełnieniu ankiety

zgodę na wprowadzenie zmian do projektu

dokumentację projektową w plikach pdf

Vēlies kaut ko mainīt?

Šo mājas projektu var pielāgot jūsu ģimenes dzīvesveidam un zemesgabala īpašībām.

Šī projekta arhitekts nav no tavas valsts.

Ja vēlies modificēt šo mājas projektu, tev ir divas iespējas:

1. Modifikācijas, ko veic oriģinālais arhitekts: Strādā tieši ar oriģinālo arhitektu, lai iegādātos modificētu digitālo koncepciju, un pēc tam nosūti to savam vietējam arhitektam, lai pasūtītu būvniecības dokumentāciju.

2. Modifikācijas, ko veic tavs vietējais arhitekts: Iegādājies digitālo koncepciju tās sākotnējā formā, strādā ar savu vietējo arhitektu pie izmaiņām un pēc tam turpini ar būvniecības dokumentācijas pasūtīšanu.

Video
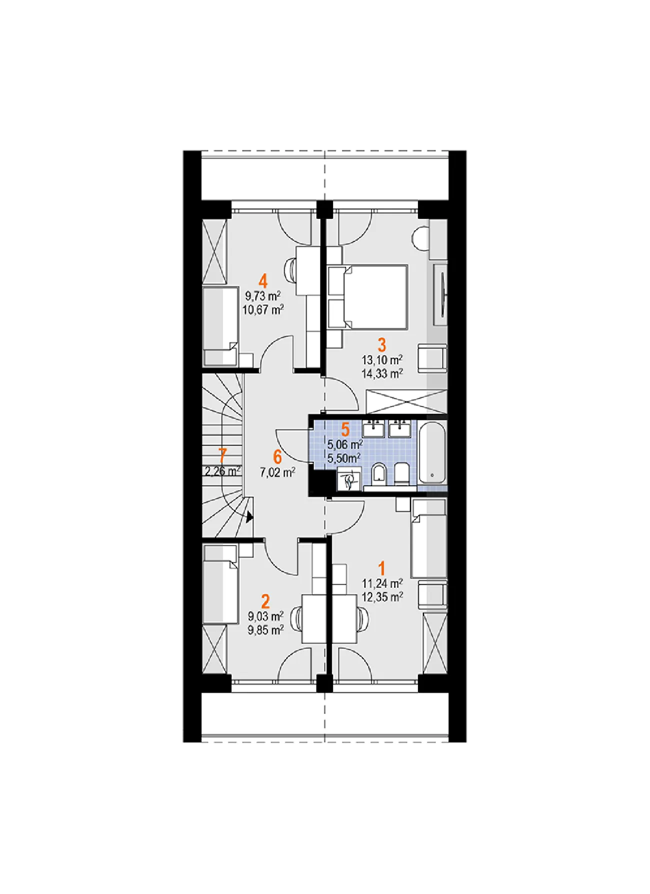
Stāvu plāni
1. stāvs
10622R - 1. stāvs
2. stāvs
10622R - 2. stāvs
Pilnā specifikācija
Platība
Total Heated: 110 m²
Total Unheated: 18 m²
Basement: 0 m²
Bonus: 0 m²
Izmēri
Dziļums 14.60 m
Platums 7.00 m
Augstums 8.71 m
Materiāli
Wood-framed
Ceramic Block
Aerated Concrete Block
Ārējā apdare
Metal Panels
Telpas
Vannasistabas : 2
Tualetes : 0
Guļamistabas : 4
Entry
Storage
Pamati
Slab
Concrete Stem Wall
Arhitektūras stils
Barn
Contemporary
European
Modern
Ārējās īpašības
Balcony
Deck
Panoramic Windows
Large Windows
Floor-to-Ceiling Windows
Iekšējās īpašības
Second Floor Master
Split Bedrooms
Open Floor Plan
Virtuve un ēdamistaba
Breakfast Nook
Island
Garāža
9: 18 m²
Auto: 1
Garage with Upstairs
Front Entry
Jumts
Jumta platība: 1528.48m²
Gable
Ridge perpendicular to street
Jumta slīpums : 12/12 (45°)
Arhitekts
Archeton Archeton Arhitektu birojs country with code pl Poland
country with code pl Poland
Lesser Poland Voivodeship, Kraków, ul. Cystersów 9 31-553
Projekta pakete

Mājas projekts var neatbilst jūsu valsts būvnoteikumiem.

Arhitekts nepārdod digitālo koncepciju un būvniecības dokumentāciju jūsu valstij. Jūs varat atzīmēt izvēles rūtiņu “Saderīgas tehnoloģijas” un apskatīt “Projekta pakete” arhitekta valstij.