Būvniecības dokumentācija tiek sagatavota šādām valstīm:
Projekts
23744R
Pabeigts
Bez paraksta un bez zīmoga
DK Nav
Galvenie parametri
137
Kopējā platība m²
1 + 1
Vannasistabas + Tualetes
3 + 0
Guļamistabas + Darba istaba
1
Auto
Vēlies kaut ko mainīt?

Šo mājas projektu var pielāgot jūsu ģimenes dzīvesveidam un zemesgabala īpašībām.

Šī projekta arhitekts nav no tavas valsts.

Ja vēlies modificēt šo mājas projektu, tev ir divas iespējas:

1. Modifikācijas, ko veic oriģinālais arhitekts: Strādā tieši ar oriģinālo arhitektu, lai iegādātos modificētu digitālo koncepciju, un pēc tam nosūti to savam vietējam arhitektam, lai pasūtītu būvniecības dokumentāciju.

2. Modifikācijas, ko veic tavs vietējais arhitekts: Iegādājies digitālo koncepciju tās sākotnējā formā, strādā ar savu vietējo arhitektu pie izmaiņām un pēc tam turpini ar būvniecības dokumentācijas pasūtīšanu.

Stāvu plāni
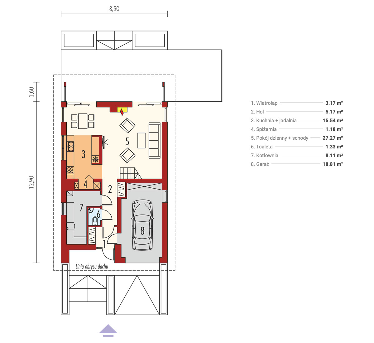
1. stāvs
23744R - 1. stāvs
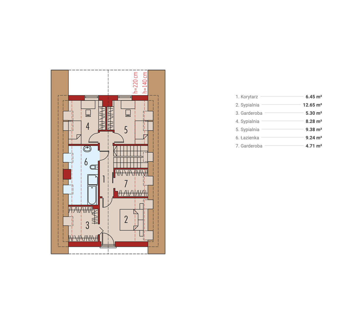
2. stāvs
23744R - 2. stāvs
Pilnā specifikācija
Platība
Apbūves platība: 125 m²
Pagrabs: 0 m²
Kopējā platība: 137 m²
Izmēri
Dziļums 14.50 m
Platums 8.50 m
Augstums 8.78 m
Materiāli
Keramiskie bloki
Gāzbetons
Ārējā apdare
Koks
Apmetums
Akmens
Telpas
Vannasistabas : 1
Tualetes : 1
Guļamistabas : 3
Katlu telpa
Priekštelpa
Garderobe guļamistabā
Pamati
Plātņveida
No blokiem
Arhitektūras stils
Cottage
European
Lake
Kalnu
Tradicionāls
Ārējās īpašības
Segta aizmugurējā veranda
Koka terase
Logi no grīdas līdz griestiem
Iekšējās īpašības
Kamīns viesistabā
Galvenā guļamistaba otrajā stāvā
Grupētas guļamistabas
Slēgta virtuve
Liela dzīvojamā istaba (>25 m²)
Liela virtuve (>12 m²)
Virtuve un ēdamistaba
Pieliekamais
Ēdamzona
Stūra logs
Garāža
9: 19 m²
Auto: 1
Integrēta
Iebraukšana no priekšpuses
Jumts
Jumta platība: 204.00m²
Divslīpju
Jumta logi
Kore perpendikulāra ielai
Jumta slīpums : 45º (±2º)
Arhitekts
ARCHIPELAG ARCHIPELAG Arhitektu birojs country with code pl
country with code pl
ul. Aleksandra Ostrowskiego 9/318
Projekta pakete

Mājas projekts var neatbilst jūsu valsts būvnoteikumiem.

Arhitekts nepārdod digitālo koncepciju un būvniecības dokumentāciju jūsu valstij. Jūs varat atzīmēt izvēles rūtiņu “Saderīgas tehnoloģijas” un apskatīt “Projekta pakete” arhitekta valstij.

Cik maksās būvniecība?
Tāme
81
Šī tāme sniegs tev izmaksu novērtējumu, balstoties uz atrašanās vietu un būvmateriāliem.