Būvniecības dokumentācija tiek sagatavota šādām valstīm:

Single Level Home Plan with Hip Roof and 2-Car Garage

Projekts
50589R
Pabeigts
Bez paraksta un bez zīmoga
DK Nav
Galvenie parametri
119
Total Heated m²
2 + 0
Vannasistabas + Tualetes
3 + 0
Guļamistabas + Darba istaba
2
Auto
Projekt architektoniczno-budowlany zawiera

opis techniczny

rzuty wszystkich kondygnacji

rzut więźby dachowej

rzut dachu

przekroje

elewacje

Projekt techniczny zawiera

projekt konstrukcji

projekt instalacji sanitarnych

projekt instalacji elektrycznej

projekt instalacji wentylacji mechanicznej

Do projektu dodajemy bezpłatnie

teczka do przechowywania dokumentacji projektowej

dziennik budowy

tablicę informacyjną na budowę - po otrzymaniu projektu domu i wypełnieniu ankiety

zgodę na wprowadzenie zmian do projektu

dokumentację projektową w plikach pdf

Vēlies kaut ko mainīt?

Šo mājas projektu var pielāgot jūsu ģimenes dzīvesveidam un zemesgabala īpašībām.

Šī projekta arhitekts nav no tavas valsts.

Ja vēlies modificēt šo mājas projektu, tev ir divas iespējas:

1. Modifikācijas, ko veic oriģinālais arhitekts: Strādā tieši ar oriģinālo arhitektu, lai iegādātos modificētu digitālo koncepciju, un pēc tam nosūti to savam vietējam arhitektam, lai pasūtītu būvniecības dokumentāciju.

2. Modifikācijas, ko veic tavs vietējais arhitekts: Iegādājies digitālo koncepciju tās sākotnējā formā, strādā ar savu vietējo arhitektu pie izmaiņām un pēc tam turpini ar būvniecības dokumentācijas pasūtīšanu.

Stāvu plāni
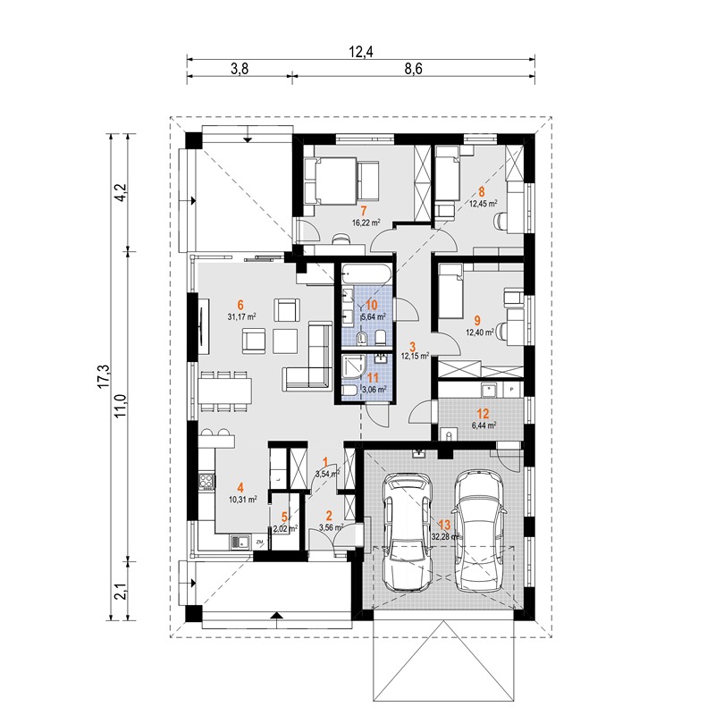
1. stāvs
50589R - 1. stāvs
Pilnā specifikācija
Platība
Total Heated: 119 m²
Total Unheated: 32 m²
Basement: 0 m²
Bonus: 0 m²
Izmēri
Dziļums 17.30 m
Platums 12.40 m
Augstums 7.42 m
Materiāli
Ceramic Block
Aerated Concrete Block
Ārējā apdare
Wood
Stucco
Telpas
Vannasistabas : 2
Tualetes : 0
Guļamistabas : 3
Furnace room
Laundry
Entry
Pamati
Slab
Concrete Stem Wall
Arhitektūras stils
Bungalow
European
Traditional
Ārējās īpašības
Covered Front Porch
Covered Rear Porch
Corner Window
Iekšējās īpašības
Fireplace in Family Room
Main Floor Master
Clustered Bedrooms
Open Floor Plan
Large Family Room (>270 ft²)
Laundry in Furnace Room
Virtuve un ēdamistaba
Walk-in Pantry
Breakfast bar
Breakfast Nook
Corner Window
Garāža
9: 32 m²
Auto: 2
Front Entry
Extension Forward
Jumts
Jumta platība: 3121.53m²
Hip
Jumta slīpums : 7/12 (30°)
Arhitekts
Archeton Archeton Arhitektu birojs country with code pl Poland
country with code pl Poland
Lesser Poland Voivodeship, Kraków, ul. Cystersów 9 31-553
Projekta pakete

Mājas projekts var neatbilst jūsu valsts būvnoteikumiem.

Arhitekts nepārdod digitālo koncepciju un būvniecības dokumentāciju jūsu valstij. Jūs varat atzīmēt izvēles rūtiņu “Saderīgas tehnoloģijas” un apskatīt “Projekta pakete” arhitekta valstij.