Būvniecības dokumentācija tiek sagatavota šādām valstīm:

Polish Two Story House Plan with Rooftop Deck above Garage

Projekts
51743R
Pabeigts
Parakstīts un apzīmogots
DK Nav
Galvenie parametri
184
Total Heated m²
1 + 1
Vannasistabas + Tualetes
3 + 1
Guļamistabas + Darba istaba
1
Auto
Rysunki architektoniczne, konstrukcyjne i instalacyjne:

rzut fundamentów

rzuty parteru i kolejnych kondygnacji

rzut stropów i nadproży

rzut więźby dachowej

rzut dachu

przekroje

zestawienie stolarki drzwiowej i okiennej

detale konstrukcji

projekty instalacji

Opisy techniczne architektoniczno-konstrukcyjne oraz opisy wewnętrznych instalacji sanitarnych i elektrycznych:

opis techniczny części architektonicznej projektu

opis techniczny konstrukcji

opisy instalacji

Opisy i dokumentacja zawierają:

charakterystykę energetyczną budynku

charakterystykę ekologiczną

informację o planie b.i o.z.

analizę porównawczą dwóch źródeł energii

oświadczenia projektantów

liczne informacje formalno-prawne

Materiały pomocnicze:

obliczenia konstrukcyjne

zestawienie elementów więźby dachowej

zestawienie materiałów do podstawowych instalacji sanitarnych, grzewczych i gazowych

zestawienie stali do zbrojenia elementów żelbetowych

widoki więźby i stropów w 3D

Vēlies kaut ko mainīt?

Šo mājas projektu var pielāgot jūsu ģimenes dzīvesveidam un zemesgabala īpašībām.

Šī projekta arhitekts nav no tavas valsts.

Ja vēlies modificēt šo mājas projektu, tev ir divas iespējas:

1. Modifikācijas, ko veic oriģinālais arhitekts: Strādā tieši ar oriģinālo arhitektu, lai iegādātos modificētu digitālo koncepciju, un pēc tam nosūti to savam vietējam arhitektam, lai pasūtītu būvniecības dokumentāciju.

2. Modifikācijas, ko veic tavs vietējais arhitekts: Iegādājies digitālo koncepciju tās sākotnējā formā, strādā ar savu vietējo arhitektu pie izmaiņām un pēc tam turpini ar būvniecības dokumentācijas pasūtīšanu.

Stāvu plāni
1. stāvs
51743R - 1. stāvs
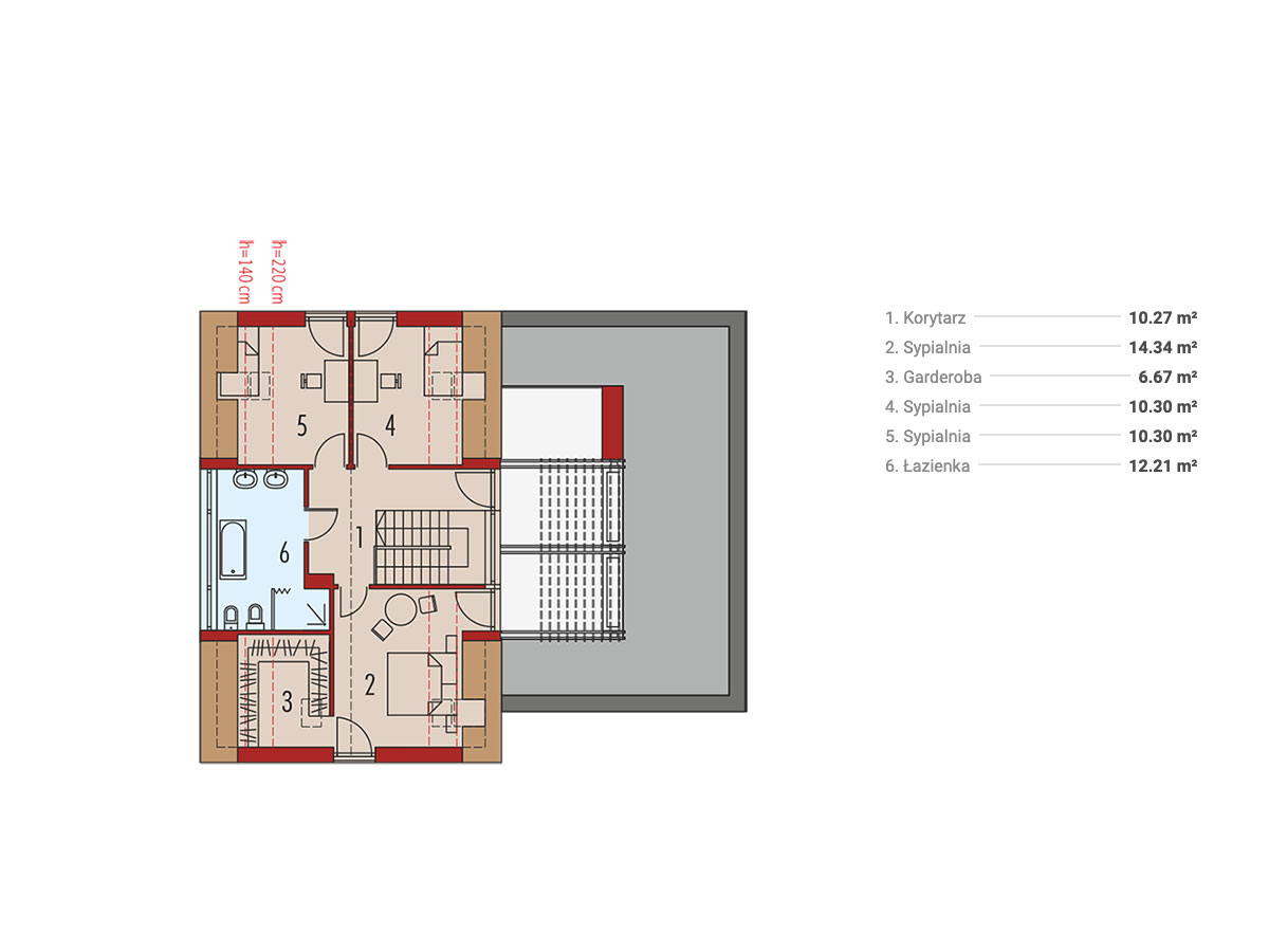
2. stāvs
51743R - 2. stāvs
Pilnā specifikācija
Platība
Total Heated: 184 m²
Total Unheated: 23 m²
Basement: 0 m²
Bonus: 0 m²
Izmēri
Dziļums 13.10 m
Platums 15.80 m
Augstums 8.54 m
Materiāli
Ceramic Block
Aerated Concrete Block
Ārējā apdare
Fiber Cement Products
Stucco
Telpas
Vannasistabas : 1
Tualetes : 1
Guļamistabas : 3
Furnace room
Entry
Home Office
Walk In Closet
Pamati
Slab
Block Stem Wall
Arhitektūras stils
Barn
Contemporary
European
Modern
Ārējās īpašības
Balcony
Deck
Corner Window
Garage rooftop deck
Large Windows
Floor-to-Ceiling Windows
Iekšējās īpašības
Fireplace in Family Room
Second Floor Master
Sitting Area
Clustered Bedrooms
Open Floor Plan
Large Family Room (>270 ft²)
Large Kitchen (>130 ft²)
Virtuve un ēdamistaba
Walk-in Pantry
Breakfast bar
Breakfast Nook
Garāža
9: 23 m²
Auto: 1
Attached
Front Entry
Jumts
Jumta platība: 1205.56m²
Gable
Skylight
Dormer
Ridge perpendicular to street
Jumta slīpums : 12/12 (45°)
Arhitekts
ARCHIPELAG ARCHIPELAG Arhitektu birojs country with code pl Poland
country with code pl Poland
Lower Silesian Voivodeship, Wrocław, ul. Mariana Smoluchowskiego 56/3
Projekta pakete

Mājas projekts var neatbilst jūsu valsts būvnoteikumiem.

Arhitekts nepārdod digitālo koncepciju un būvniecības dokumentāciju jūsu valstij. Jūs varat atzīmēt izvēles rūtiņu “Saderīgas tehnoloģijas” un apskatīt “Projekta pakete” arhitekta valstij.

Cik maksās būvniecība?
Tāme
$ 95
Šī tāme sniegs tev izmaksu novērtējumu, balstoties uz atrašanās vietu un būvmateriāliem.