Būvniecības dokumentācija tiek sagatavota šādām valstīm:

1600 Sq Ft Flat Roof House Plan with Basement Garage

Projekts
53449R
Pabeigts
Bez paraksta un bez zīmoga
DK Nav
Galvenie parametri
149
Total Heated m²
3 + 0
Vannasistabas + Tualetes
3 + 1
Guļamistabas + Darba istaba
2
Auto
Projekt architektoniczno-budowlany zawiera

opis techniczny

rzuty wszystkich kondygnacji

rzut więźby dachowej

rzut dachu

przekroje

elewacje

Projekt techniczny zawiera

projekt konstrukcji

projekt instalacji sanitarnych

projekt instalacji elektrycznej

projekt instalacji wentylacji mechanicznej

Do projektu dodajemy bezpłatnie

teczka do przechowywania dokumentacji projektowej

dziennik budowy

tablicę informacyjną na budowę - po otrzymaniu projektu domu i wypełnieniu ankiety

zgodę na wprowadzenie zmian do projektu

dokumentację projektową w plikach pdf

Vēlies kaut ko mainīt?

Šo mājas projektu var pielāgot jūsu ģimenes dzīvesveidam un zemesgabala īpašībām.

Šī projekta arhitekts nav no tavas valsts.

Ja vēlies modificēt šo mājas projektu, tev ir divas iespējas:

1. Modifikācijas, ko veic oriģinālais arhitekts: Strādā tieši ar oriģinālo arhitektu, lai iegādātos modificētu digitālo koncepciju, un pēc tam nosūti to savam vietējam arhitektam, lai pasūtītu būvniecības dokumentāciju.

2. Modifikācijas, ko veic tavs vietējais arhitekts: Iegādājies digitālo koncepciju tās sākotnējā formā, strādā ar savu vietējo arhitektu pie izmaiņām un pēc tam turpini ar būvniecības dokumentācijas pasūtīšanu.

Stāvu plāni
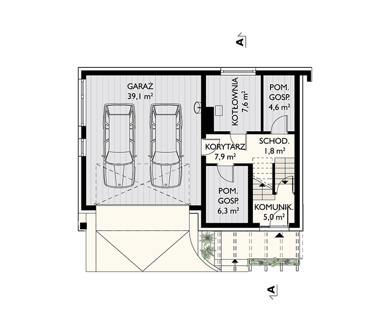
1. stāvs
53449R - 1. stāvs
2. stāvs
53449R - 2. stāvs
Pagrabs
53449R - Pagrabs
Pilnā specifikācija
Platība
Total Heated: 149 m²
Total Unheated: 72 m²
Basement: 72 m²
Bonus: 0 m²
Izmēri
Dziļums 8.90 m
Platums 12.10 m
Augstums 8.90 m
Materiāli
Wood-framed
Ceramic Block
Aerated Concrete Block
Ārējā apdare
Wood
Stucco
Telpas
Vannasistabas : 3
Tualetes : 0
Guļamistabas : 3
Furnace room
Laundry
Entry
Home Office
Storage
Walk In Closet
Pamati
Daylight Basement
Arhitektūras stils
Contemporary
European
High-tech
Modern
Ārējās īpašības
Balcony
Covered Front Porch
Covered Side Porch
Large Windows
Floor-to-Ceiling Windows
Iekšējās īpašības
Fireplace in Family Room
Second Floor Master
Clustered Bedrooms
Open Floor Plan
Large Family Room (>270 ft²)
Large Kitchen (>130 ft²)
Laundry in Furnace Room
Virtuve un ēdamistaba
Breakfast Nook
Island
Corner Window
Garāža
9: 0 m²
Auto: 2
Drive Under
Front Entry
Jumts
Jumta platība: 839.59m²
Flat
Jumta slīpums : 1/12 (5°)
Arhitekts
Archeton Archeton Arhitektu birojs country with code pl Poland
country with code pl Poland
Lesser Poland Voivodeship, Kraków, ul. Cystersów 9 31-553
Projekta pakete

Mājas projekts var neatbilst jūsu valsts būvnoteikumiem.

Arhitekts nepārdod digitālo koncepciju un būvniecības dokumentāciju jūsu valstij. Jūs varat atzīmēt izvēles rūtiņu “Saderīgas tehnoloģijas” un apskatīt “Projekta pakete” arhitekta valstij.