Būvniecības dokumentācija tiek sagatavota šādām valstīm:
Projekts
78609R
Pabeigts
Parakstīts un apzīmogots
DK Nav
Galvenie parametri
312
Kopējā platība m²
2 + 0
Vannas + WC
5 + 0
Guļamistabas + Darba istaba
1
Auto
Projekt architektoniczno-budowlany zawiera

opis techniczny

rzuty wszystkich kondygnacji

rzut więźby dachowej

rzut dachu

przekroje

elewacje

Projekt techniczny zawiera

projekt konstrukcji

projekt instalacji sanitarnych

projekt instalacji elektrycznej

projekt instalacji wentylacji mechanicznej

Do projektu dodajemy bezpłatnie

teczka do przechowywania dokumentacji projektowej

dziennik budowy

tablicę informacyjną na budowę - po otrzymaniu projektu domu i wypełnieniu ankiety

zgodę na wprowadzenie zmian do projektu

dokumentację projektową w plikach pdf

Vēlies kaut ko mainīt?

Šo mājas projektu var pielāgot jūsu ģimenes dzīvesveidam un zemesgabala īpašībām.

Šī projekta arhitekts nav no tavas valsts.

Ja vēlies modificēt šo mājas projektu, tev ir divas iespējas:

1. Modifikācijas, ko veic oriģinālais arhitekts: Strādā tieši ar oriģinālo arhitektu, lai iegādātos modificētu digitālo koncepciju, un pēc tam nosūti to savam vietējam arhitektam, lai pasūtītu būvniecības dokumentāciju.

2. Modifikācijas, ko veic tavs vietējais arhitekts: Iegādājies digitālo koncepciju tās sākotnējā formā, strādā ar savu vietējo arhitektu pie izmaiņām un pēc tam turpini ar būvniecības dokumentācijas pasūtīšanu.

Stāvu plāni
1. stāvs
78609R - 1. stāvs
2. stāvs
78609R - 2. stāvs
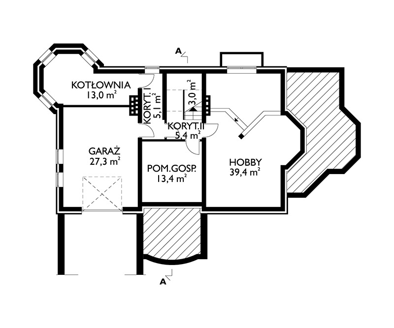
Pagrabs
78609R - Pagrabs
Pilnā specifikācija
Platība
Apbūves platība: 141 m²
Pagrabs: 107 m²
Kopējā platība: 312 m²
Izmēri
Dziļums 11.10 m
Platums 16.50 m
Augstums 9.30 m
Materiāli
Keramiskie bloki
Gāzbetons
Ārējā apdare
Klinkera flīzes
Apmetums
Telpas
Vannasistabas : 2
Tualetes : 0
Guļamistabas : 5
Katlu telpa
Priekštelpa
Noliktava
Darbnīca
Pamati
Puspagrabs
Arhitektūras stils
Klasisks
European
Neogrieķu
Tradicionāls
Ārējās īpašības
Balkons
Segta priekšējā veranda
Koka terase
Erkers
Portiks
Iekšējās īpašības
Veļas telpa pagrabā
Kamīns viesistabā
Galvenā guļamistaba otrajā stāvā
Kamīna zona
Grupētas guļamistabas
Slēgta virtuve
Liela dzīvojamā istaba (>25 m²)
Liela virtuve (>12 m²)
Virtuve un ēdamistaba
Virtuves bārs
Ēdamzona
Garāža
9: 0 m²
Auto: 1
Pagrabstāvā
Iebraukšana no priekšpuses
Jumts
Jumta platība: 261.00m²
Daudzslīpju
Jumta izbūve
Kore paralēla ielai
Jumta slīpums : 45º (±2º)
Arhitekts
Archeton Archeton Arhitektu birojs country with code pl Poland
country with code pl Poland
Lesser Poland Voivodeship, Kraków, ul. Cystersów 9
Projekta pakete

Mājas projekts var neatbilst jūsu valsts būvnoteikumiem.

Arhitekts nepārdod digitālo koncepciju un būvniecības dokumentāciju jūsu valstij. Jūs varat atzīmēt izvēles rūtiņu “Saderīgas tehnoloģijas” un apskatīt “Projekta pakete” arhitekta valstij.

Cik maksās būvniecība?
Tāme
60
Šī tāme sniegs tev izmaksu novērtējumu, balstoties uz atrašanās vietu un būvmateriāliem.