Būvniecības dokumentācija tiek sagatavota šādām valstīm:
Projekts
89159R
Pabeigts
Parakstīts un apzīmogots
DK Nav
Galvenie parametri
242
Kopējā platība m²
3 + 0
Vannas + WC
4 + 0
Guļamistabas + Darba istaba
2
Auto
Projekt architektoniczno-budowlany zawiera

opis techniczny

rzuty wszystkich kondygnacji

rzut więźby dachowej

rzut dachu

przekroje

elewacje

Projekt techniczny zawiera

projekt konstrukcji

projekt instalacji sanitarnych

projekt instalacji elektrycznej

projekt instalacji wentylacji mechanicznej

Do projektu dodajemy bezpłatnie

teczka do przechowywania dokumentacji projektowej

dziennik budowy

tablicę informacyjną na budowę - po otrzymaniu projektu domu i wypełnieniu ankiety

zgodę na wprowadzenie zmian do projektu

dokumentację projektową w plikach pdf

Vēlies kaut ko mainīt?

Šo mājas projektu var pielāgot jūsu ģimenes dzīvesveidam un zemesgabala īpašībām.

Šī projekta arhitekts nav no tavas valsts.

Ja vēlies modificēt šo mājas projektu, tev ir divas iespējas:

1. Modifikācijas, ko veic oriģinālais arhitekts: Strādā tieši ar oriģinālo arhitektu, lai iegādātos modificētu digitālo koncepciju, un pēc tam nosūti to savam vietējam arhitektam, lai pasūtītu būvniecības dokumentāciju.

2. Modifikācijas, ko veic tavs vietējais arhitekts: Iegādājies digitālo koncepciju tās sākotnējā formā, strādā ar savu vietējo arhitektu pie izmaiņām un pēc tam turpini ar būvniecības dokumentācijas pasūtīšanu.

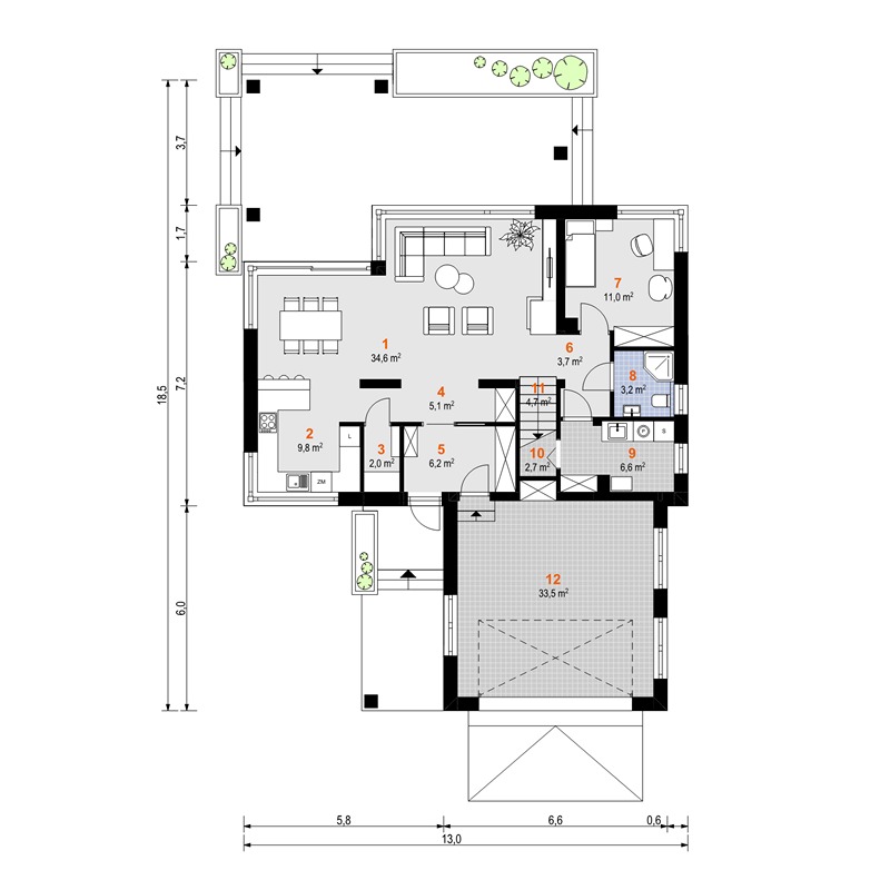
Stāvu plāni
1. stāvs
89159R - 1. stāvs
2. stāvs
89159R - 2. stāvs
Pilnā specifikācija
Platība
Apbūves platība: 154 m²
Pagrabs: 0 m²
Kopējā platība: 242 m²
Izmēri
Dziļums 18.50 m
Platums 13.00 m
Augstums 8.54 m
Materiāli
Keramiskie bloki
Gāzbetons
Ārējā apdare
Šķiedru cementa plāksnes
Apmetums
Telpas
Vannasistabas : 3
Tualetes : 0
Guļamistabas : 4
Katlu telpa
Papildu telpa
Veļas telpa
Priekštelpa
Noliktava
Garderobe guļamistabā
Pamati
Plātņveida
Lentveida
Arhitektūras stils
European
Tradicionāls
Ārējās īpašības
Segta priekšējā veranda
Segta aizmugurējā veranda
Stūra logs
Panorāmas logi
Lieli logi
Logi no grīdas līdz griestiem
Iekšējās īpašības
Kamīns viesistabā
Galvenā guļamistaba otrajā stāvā
Grupētas guļamistabas
Atvērta virtuve
Liela dzīvojamā istaba (>25 m²)
Veļas telpa katlu telpā
Virtuve un ēdamistaba
Pieliekamais
Virtuves bārs
Ēdamzona
Stūra logs
Garāža
9: 33 m²
Auto: 2
Iebraukšana no priekšpuses
Izvirzīta
Jumts
Jumta platība: 255.00m²
Daudzslīpju
Jumta logi
Kore paralēla ielai
Jumta slīpums : 40º (±2º)
Arhitekts
Archeton Archeton Arhitektu birojs country with code pl Poland
country with code pl Poland
Lesser Poland Voivodeship, Kraków, ul. Cystersów 9
Projekta pakete

Mājas projekts var neatbilst jūsu valsts būvnoteikumiem.

Arhitekts nepārdod digitālo koncepciju un būvniecības dokumentāciju jūsu valstij. Jūs varat atzīmēt izvēles rūtiņu “Saderīgas tehnoloģijas” un apskatīt “Projekta pakete” arhitekta valstij.

Cik maksās būvniecība?
Tāme
60
Šī tāme sniegs tev izmaksu novērtējumu, balstoties uz atrašanās vietu un būvmateriāliem.