Būvniecības dokumentācija tiek sagatavota šādām valstīm:

1600 Sq Ft House Plan with 4 Bedrooms and Open Floor Plan

Projekts
98299R
Pabeigts
Parakstīts un apzīmogots
DK Nav
Galvenie parametri
140
Total Heated m²
2 + 1
Vannasistabas + Tualetes
4 + 0
Guļamistabas + Darba istaba
0
Auto
Rysunki architektoniczne, konstrukcyjne i instalacyjne:

rzut fundamentów

rzuty parteru i kolejnych kondygnacji

rzut stropów i nadproży

rzut więźby dachowej

rzut dachu

przekroje

zestawienie stolarki drzwiowej i okiennej

detale konstrukcji

projekty instalacji

Opisy techniczne architektoniczno-konstrukcyjne oraz opisy wewnętrznych instalacji sanitarnych i elektrycznych:

opis techniczny części architektonicznej projektu

opis techniczny konstrukcji

opisy instalacji

Opisy i dokumentacja zawierają:

charakterystykę energetyczną budynku

charakterystykę ekologiczną

informację o planie b.i o.z.

analizę porównawczą dwóch źródeł energii

oświadczenia projektantów

liczne informacje formalno-prawne

Materiały pomocnicze:

obliczenia konstrukcyjne

zestawienie elementów więźby dachowej

zestawienie materiałów do podstawowych instalacji sanitarnych, grzewczych i gazowych

zestawienie stali do zbrojenia elementów żelbetowych

widoki więźby i stropów w 3D

Vēlies kaut ko mainīt?

Šo mājas projektu var pielāgot jūsu ģimenes dzīvesveidam un zemesgabala īpašībām.

Šī projekta arhitekts nav no tavas valsts.

Ja vēlies modificēt šo mājas projektu, tev ir divas iespējas:

1. Modifikācijas, ko veic oriģinālais arhitekts: Strādā tieši ar oriģinālo arhitektu, lai iegādātos modificētu digitālo koncepciju, un pēc tam nosūti to savam vietējam arhitektam, lai pasūtītu būvniecības dokumentāciju.

2. Modifikācijas, ko veic tavs vietējais arhitekts: Iegādājies digitālo koncepciju tās sākotnējā formā, strādā ar savu vietējo arhitektu pie izmaiņām un pēc tam turpini ar būvniecības dokumentācijas pasūtīšanu.

Stāvu plāni
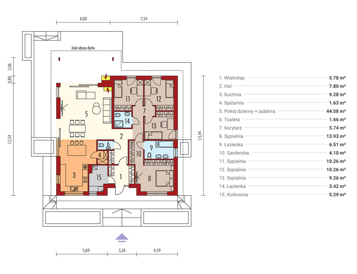
1. stāvs
98299R - 1. stāvs
Pilnā specifikācija
Platība
Total Heated: 140 m²
Total Unheated: 0 m²
Basement: 0 m²
Bonus: 0 m²
Izmēri
Dziļums 15.40 m
Platums 13.54 m
Augstums 6.94 m
Materiāli
Ceramic Block
Aerated Concrete Block
Ārējā apdare
Fiber Cement Products
Stucco
Telpas
Vannasistabas : 2
Tualetes : 1
Guļamistabas : 4
Furnace room
Entry
Pamati
Slab
Concrete Stem Wall
Arhitektūras stils
Bungalow
European
Traditional
Transitional
Ārējās īpašības
Wrap Around Porch
Outdoor Fireplace
Covered Rear Porch
Corner Window
Large Windows
2-Sided Fireplace
Floor-to-Ceiling Windows
Iekšējās īpašības
Fireplace in Family Room
Main Floor Master
Clustered Bedrooms
Open Floor Plan
Large Family Room (>270 ft²)
Virtuve un ēdamistaba
Walk-in Pantry
Breakfast Nook
Island
Garāža
9: 0 m²
Auto: 0
Jumts
Jumta platība: 2744.80m²
Gable
Jumta slīpums : 6/12 (26°)
Arhitekts
ARCHIPELAG ARCHIPELAG Arhitektu birojs country with code pl Poland
country with code pl Poland
Lower Silesian Voivodeship, Wrocław, ul. Mariana Smoluchowskiego 56/3
Projekta pakete

Mājas projekts var neatbilst jūsu valsts būvnoteikumiem.

Arhitekts nepārdod digitālo koncepciju un būvniecības dokumentāciju jūsu valstij. Jūs varat atzīmēt izvēles rūtiņu “Saderīgas tehnoloģijas” un apskatīt “Projekta pakete” arhitekta valstij.

Cik maksās būvniecība?
Tāme
$ 95
Šī tāme sniegs tev izmaksu novērtējumu, balstoties uz atrašanās vietu un būvmateriāliem.